天津-凤江湖论坛,韶关栖凤阁论坛(全国信息),qm论坛品茶,51品茶全国一品楼,赣州51龙凤茶楼论坛

热线电话13916299677
图文传真021-66773338
电子邮箱sale@cnspump.com

产品简介


QJ型井用潜水电泵是电机与水泵直联一体潜入水中工作的提水机具,它适用于从深井提取地下水、也可用于河流、水库、水渠等提水工程:主要用于农田灌溉及高原山区的人畜用水,亦可供城市、工厂、铁路、矿山、工地供排水使用。

产品优势


  1. 电机、水泵一体,潜入水中运行,安全可靠。
  2. 对井管、扬水管无特殊要求(即:钢管井、灰管井、土井等均可使用;在压力许可下、钢管、胶管、塑料管等均可作扬水管使用)。
  3. 安装、使用、维护方便简单,占地面积小、不需建造泵房。
  4. 结构简单、节省原材料。 潜水电泵使用的条件是否合适,管理得当与使用寿命有直接的关系。

选型范围


QJ型井用潜水电泵(深井泵)

性能参数本数据仅供参考,请以实际订货为准!


QJ型井用潜水电泵(深井泵)

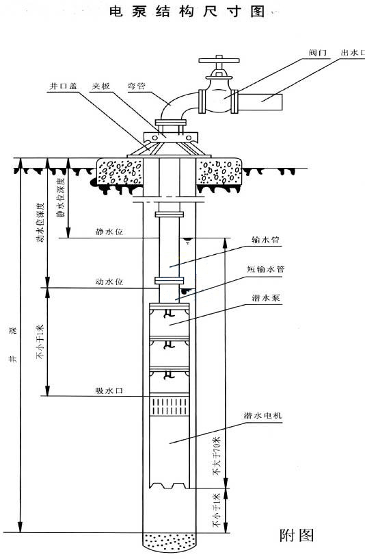
结构图纸


QJ型井用潜水电泵(深井泵) 结构说明 1.QJ型潜水电泵机组由:水泵、潜水电机(包括电缆)、输水管和控制开关四大部分组成。潜水泵为单吸多级立式离心泵:潜水电机为密闭充水湿式、立式三相鼠笼异歩电动机,电机与水泵通过爪式或中.键筒式联轴器直接;配备有不同规格的三芯电缆:起动设备为不同容量等级的空气开关和自耦减压起动器、输水管为不同直径的钢管制成,采用法兰联接,高扬程电泵釆用闸阀控制。 2.潜水泵每级导流壳中装有一个橡胶轴承;叶轮用锥形套固定在泵轴上:导流壳采用嫘纹或螺栓联成一体。 3.高扬程潜水泵上部装有止回阀,避免?;冈斐苫槠苹?。 4.潜水电机轴上部装有迷宫式防砂器和两个反向装配的骨架油封,防止流砂进入电机。 5.潜水电机采用水润滑轴承,下部装有橡胶调压膜、调压弹簧,组成调压室,调节由于温度引起的压力变化;电机绕组采用聚乙烯绝缘,尼龙护套耐水电磁线,电缆联接方式按QJ型电缆接头工艺, 把接头绝缘脱去刮净漆层,分别接好,焊接牢固,用生橡胶绕-层。再用防水粘胶带缠2~3层,外面包上2?3层防水胶布或用水胶粘结包一层橡胶带(自行车里胎〉以防渗水。 6.电机密闭,采用精密止口螺牷,电缆出口加胶塾进行密封。 7.电机上端有一个注水孔,有一个放气孔,卜部打个放水孔。 8.电机下部装有上卜—止推轴承,止推轴承上有沟槽用干冷却,和它对磨的是不锈钢推力盘,承爱水泵的上厂轴向力。

上一产品:
下一产品: